MAIS LOTES: PROJETO HABITACIONAL VAI SE CONCRETIZANDO

0
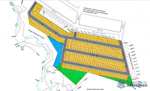
Prefeitura iniciou arruamento e demarcação dos lotes do Loteamento Jardim Santa Luzia. Uma ponte será construída no rio Ribeirão da Onça para acesso aos bairros Jardim das Palmeiras e Santa Luzia.
O Conjunto Habitacional Santa Luzia em implantação pela Prefeitura, será localizado nas proximidades do Jardim das Palmeiras, ao lado do Condomínio São Francisco. O loteamento popular será compreendido de 204 lotes, que serão doados para famílias de baixa renda, igual ou inferior a 4 salários mínimos, considerando a somatória de toda renda familiar.
Os lotes/terrenos desmembrados para doação terão 175 m². No projeto habitacional consta uma área verde de 5 mil m² e uma área institucional de 2 mil e 500 m². Os lotes serão contemplados aos beneficiados ainda este ano. Os interessados deverão se inscrever no Cadastro Social a ser realizado em hora oportuna pela Prefeitura. Os que obtiverem terrenos terão um prazo para iniciar e terminar a construção das casas, contado a partir da infraestrutura feita pelo Município. O não cumprimento dos prazos por parte do donatário acarretará penalidade e até mesmo a perda do direito do imóvel.
Os futuros donos dos terrenos não poderão vender, alugar, doar ou permutar o imóvel. O terreno adquirido pode ser fornecido pelo donatário em garantia para financiamento em bancos na construção das casas.

DEIXE UMA RESPOSTA

Please enter your comment!
Please enter your name here